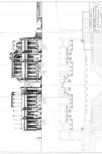
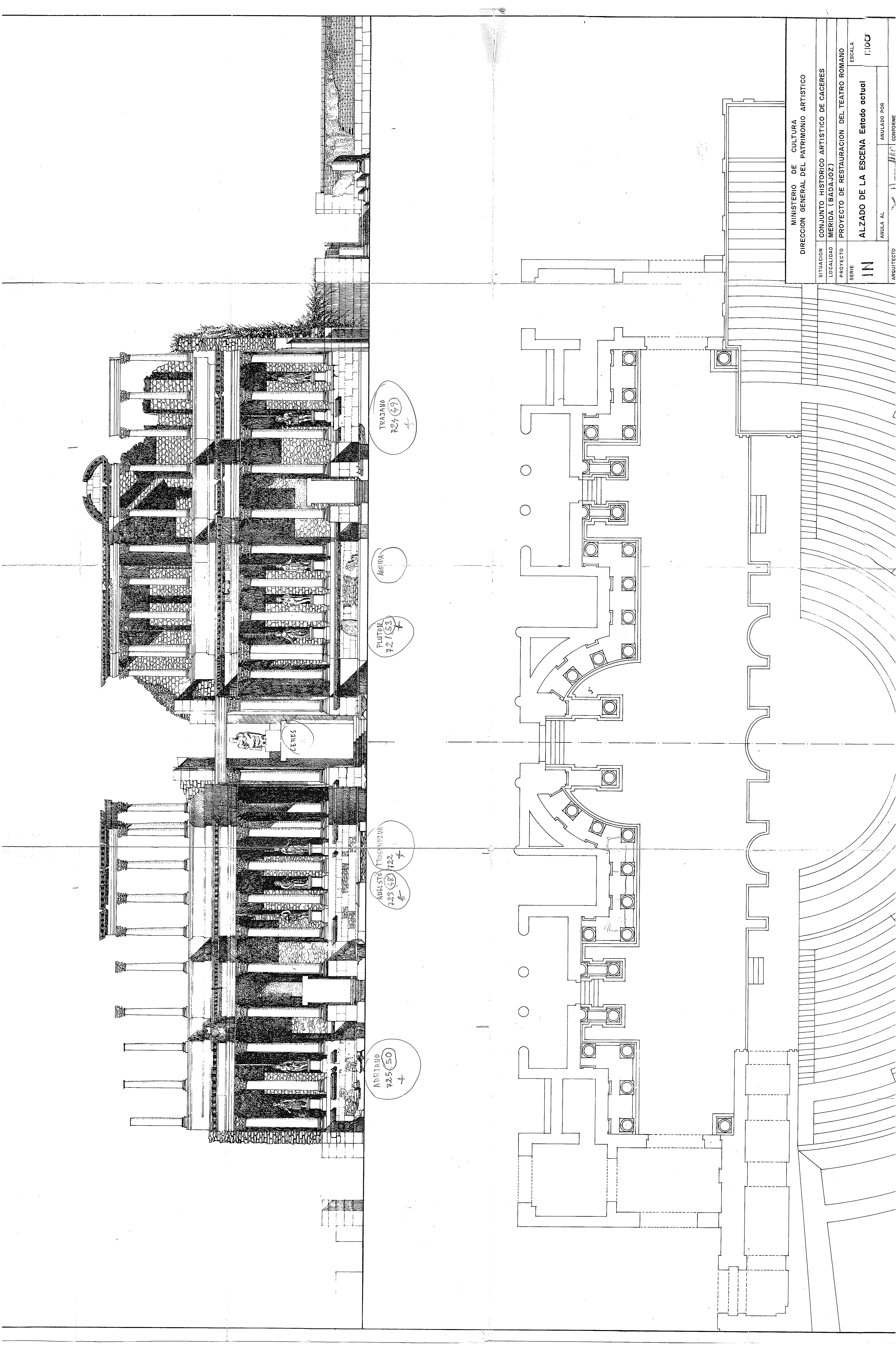
alzado de dionisio

Reconstrucción 3d del Teatro Clásico de Mérida